Interiorismo vivienda DM junto al mar en Portixol
UBICACIÓN
Nuestro proyecto de interiorismo se ubica en la zona del Portixol de Palma de Mallorca.
El Portitxol es una antigua zona de pescadores contigua al núcleo urbano de Palma surgido a finales del S.XIX que ha tenido un gran auge en los últimos años por su proximidad al mar, ambiente de pueblo y buenas comunicaciones.
Es un área que destaca por sus restaurantes y terrazas en primera línea donde se mezclan los platos tradicionales con cocina fusión internacional.
La arquitectura de la zona es una mezcla entre antiguas viviendas de pescadores y edificios de dos y tres alturas construidos a partir de finales de los setenta, momento en que el barrio experimentó un crecimiento urbanístico destacable. Las viviendas situadas en primera línea, por su escasez y demanda se encuentran entre las más valoradas de Palma.
VIVIENDA
El proyecto de arquitectura y diseño que abordamos en esta ocasión es un apartamento con espectaculares vistas al mar.
La vivienda presenta un grado de conservación aceptable, sin renovaciones desde su construcción original en los ochenta, pero obsoleto para las necesidades actuales.
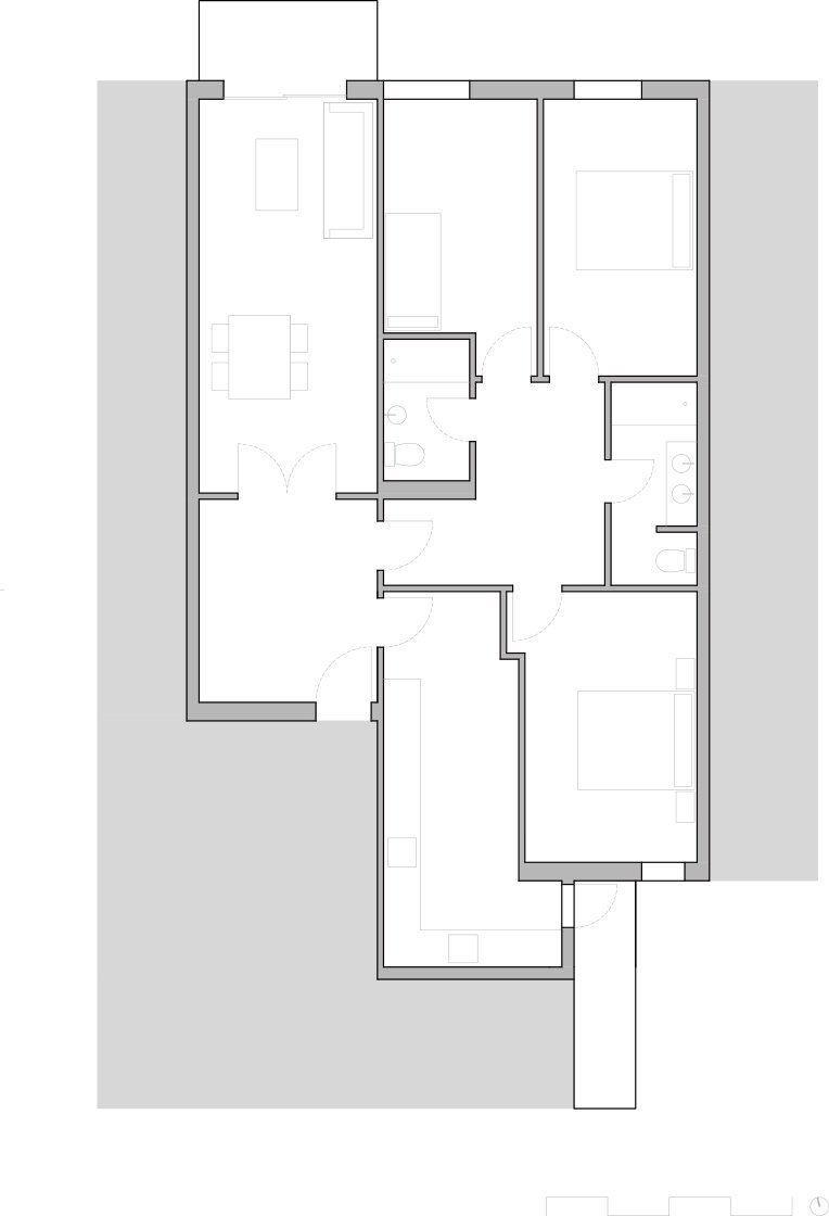
La vivienda presenta una planta ortogonal con una distribución que no aprovecha el potencial de la vivienda. Las zonas de recorridos son excesivamente grandes y las estancias demasiado justas.
El recibidor es muy grande que da paso a una alargada y estrecha sala de estar. Tres dormitorios dobles de apenas 10-12m2 y un baño y un aseo articuladas en un distribuidor sobredimensionado. Hasta el punto que la superficie de los recorridos (pasillos y distribuidores) es superior a la superficie de la sala de estar.
OBJETIVO
Nuestro cliente es una pareja joven que pasan largas estancias en Mallorca.
- Necesitan únicamente dos habitaciones.
- Que el dormitorio principal tenga baño en suite.
- Un gran espacio para el estar, comedor y la cocina abierta.
- Contar con una zona de almacenaje amplia al no disponer el edificio de trastero y dotar en general al piso de muchos armarios.
- Necesitan una zona de estudio/trabajo muy tranquila.
NUESTRA INTERVENCIÓN
Nuestros arquitectos plantean el aprovechamiento máximo de la superficie de la vivienda para conseguir espacios muy amplios y luminosos.
Nuestra propuesta de diseño reduce los pasillos y distribuidores al mínimo necesario.
Nada más abrir la puerta de entrada de la vivienda ahora se tiene una percepción muy amplia del espacio y vistas directas al exterior donde puede verse el mar.
Nuestro despacho de arquitectura propone un diseño de interiores con un frente de armarios que recorre toda la zona de estar comedor cocina y que cumple diferentes funciones. En él encontramos zonas de almacenaje, la cocina, la lavandería…. Todo oculto tras un frente continuo y homogéneo donde destacan, en un material diferente, la cocina y la zona de la televisión.
Nuestros arquitectos redistribuyen la zona de las habitaciones donde el dormitorio secundario se sitúa en la fachada y el principal en la fachada opuesta para obtener una total tranquilidad durante el descanso.
Destaca el diseño de la zona del dormitorio principal que se articulan diferentes usos dentro del espacio como el propio dormitorio, vestidor, lavabos y despacho. Todos estos espacios se encuentran visualmente conectados lo que aumenta la percepción de amplitud y calidad del espacio.
Respecto a los acabados, nuestro proyecto de interiorismo destaca por la utilización de materiales naturales y colores neutros buscando el contraste en zonas puntuales con materiales más oscuros.
La intervención de nuestro despacho de arquitectos realiza una distribución del total agrado del cliente que maximiza el espacio e iluminación natural logrando una mayor sensación de amplitud. En definitiva, una vivienda luminosa y cómoda para vivir y disfrutarla.





