Reforma integral e interiorismo DF Sóller
Diseño, modernidad y tradición en el valle de oro.
UBICACIÓN
Nuestro proyecto de arquitectura y reforma integral nos traslada en esta ocasión a Soller, un pueblecito encantador situado en el noreste de Mallorca, perfecto ejemplo de belleza y tradición de la isla.
El nombre de Soller proviene de su pasado árabe Sulliar y significa Oro, antiguamente el valle ya era conocido por su riqueza.
Situado en medio de un valle prácticamente aislado por la Serra hasta el siglo XX prosperó gracias al comercio de sus famosas naranjas que se exportaban a Francia desde el Port de Sóller.
Este vínculo y una fuerte plaga afectó a los naranjos en 1865 propició que muchos Sollerics emigrasen a Francia, y retornasen posteriormente con fortunas algunas de las cuales propiciaron la construcción de los magníficos edificios modernistas que se pueden ver en el centro del pueblo, uno de los mejor conservados y más interesantes arquitectónicamente de Mallorca.
VIVIENDA
La vivienda se ubica en un edificio del casco antiguo de Sóller, muy próximo al centro, construido a principios de s. XX, consta de planta baja más dos alturas.
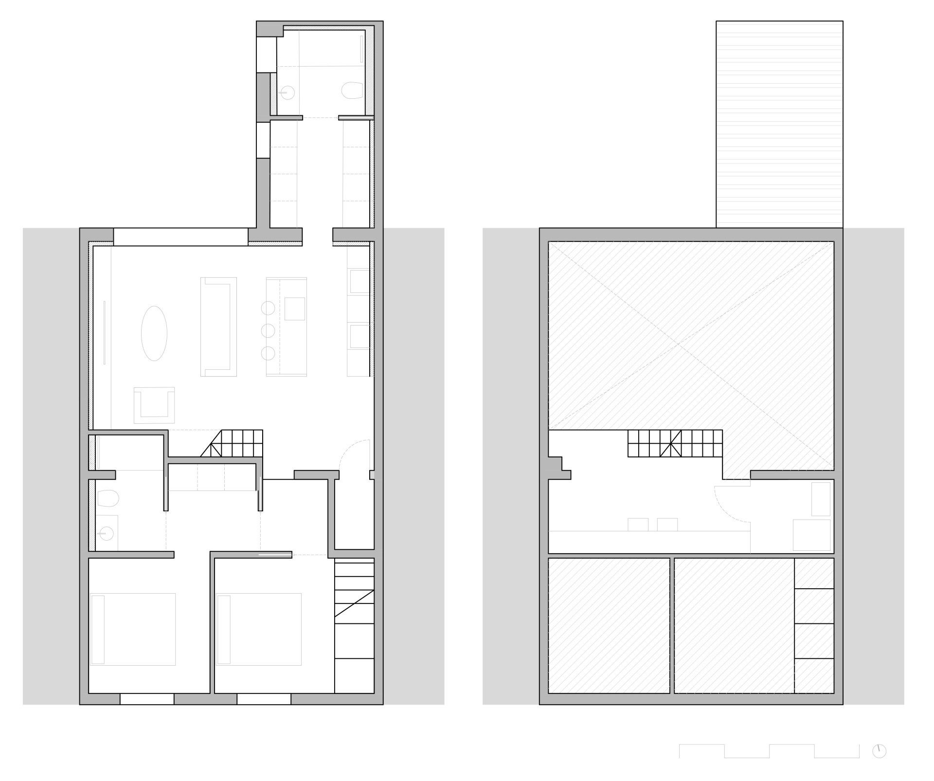
El apartamento objeto de nuestro proyecto de arquitectura y diseño se ubica en la segunda planta, la cubierta inclinada a dos aguas le dota de techos muy altos de más cuatro metros.
Desde los años cincuenta el piso fue destinado a oficina y permaneció cerrada durante los últimos diez años.
La rehabilitación presenta, por tanto, muchos problemas de inicio, no sólo aquellos debidos al deterioro obvio del abandono sino una muy mala distribución.
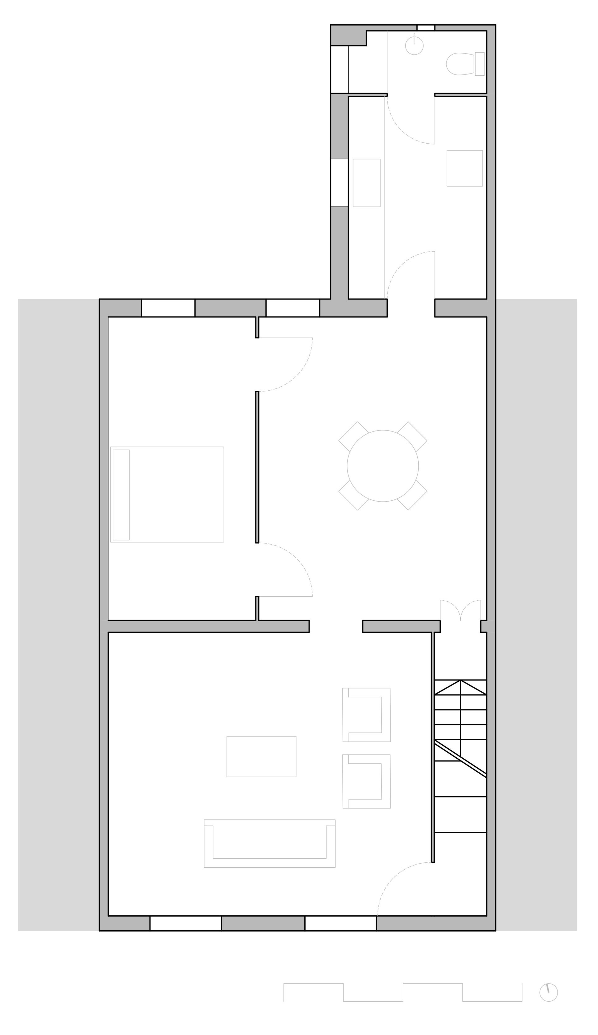
La vivienda que debemos reformar consta de unos noventa metros cuadrados, se dispone en una planta rectangular con un apéndice, formado por dos vanos divididos por un muro de carga central.
OBJETIVO
Nuestros clientes son una pareja sin hijos que buscan una segunda residencia donde desconectar y disfrutar de su tiempo libre, un remanso de tranquilidad para descansar acunados entre la Serra de Tramuntana y el mar Mediterráneo.
Realizaremos una reforma integral maximizando el espacio disponible, se nos permite toda la libertad creativa para obtener el mejor resultado posible.
INTERVENCIÓN
La decisión más estructurante de nuestro arquitecto consiste en eliminar muro de carga interior que dividía la vivienda liberando el espacio permitiendo que la luz fluya proporcionando una mayor sensación de amplitud.
Para maximizar la superficie disponible procedemos a crear dos niveles habitables en la parte central del apartamento aprovechando el tejado a dos aguas que supera en este punto los cuatro metros de altura.
Disponemos en la parte superior un acogedor altillo que constituye una zona de trabajo que se abre sobre el gran espacio de estar comedor cocina y emplazamos en la parte inferior baño y vestidor.
En la fachada posterior, en la sala de estar, existían dos pequeñas ventanas que apenas iluminaban el espacio, nuestro arquitecto proyecta unirlas creando un gran ventanal que, además de aportar más luminosidad, nos enmarca las maravillosas vistas a la Serra de Tramuntana de las que nuestros clientes podrán disfrutar sentados en el sofá.
En el apéndice restante se plantea como una zona mixta de cocina y lavandería dejando al fondo un pequeño baño secundario que sirve al segundo dormitorio.
Respecto al diseño interior, en el tratamiento de los acabados destaca el blanco, con detalles en negro, piedra y madera.
El predominio del blanco logra siempre la mayor luminosidad posible, jugamos en este caso con las distintas texturas de los acabados en blanco en paredes, la madera de vigas destacando la pared original de piedra recuperada en la zona de día.
El negro lo reservamos para realzar los elementos más significativos, como la escalera hierro con los peldaños suspendidos.
La cocina se plantea casi como parte del mobiliario, diseñando únicamente volúmenes bajos, con mobiliario en blanco y encimera en tonos grises.
La cuidada iluminación ayuda a crear diferentes ambientes en función del momento y uso del día. Uno de estos ambientes, por su peculiaridad, es el que se ha diseñado con la gran pared blanca de piedra.
Nuestra rehabilitación no solo conserva y recupera elementos previamente existentes, como las vigas de madera, sino que descubre y potencia otros que permanecían escondidos como la pared de piedra, inicialmente cubierta de yeso, que se convierte en un elemento de iluminación de ambiente muy representativo de este proyecto de diseño
Nuestro despacho de arquitectura libera espacios y luz ampliando incluso la superficie habitable. Logra aunar diseño, modernidad y tradición.









